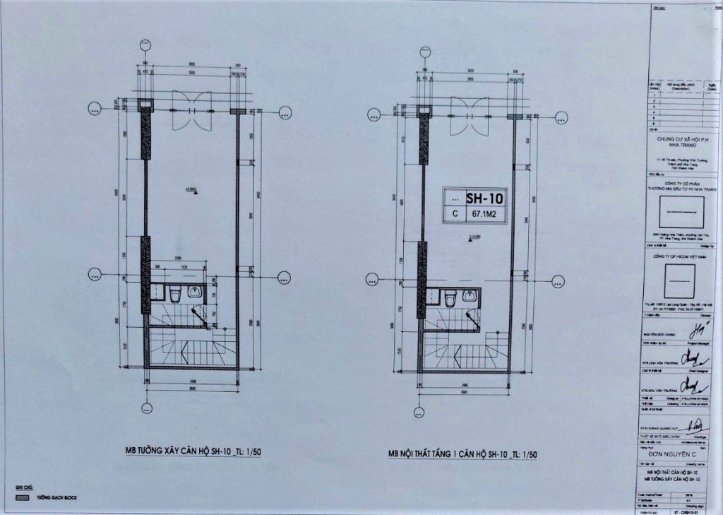
💫💫💫Hai căn Shophouse liền kề chung cư PH Nha Trang
📌Diện tích 68m2/căn, gồm 2 tầng. 2WC.
📌View công viên nội khu, có thể cải tạo thông nhau, phù hợp nhiều hình thức kinh doanh.
📌Cách biển chỉ 1km. Gần chợ, trường học, các điểm du lịch…
💰Giá 2 tỷ 250tr/căn.




🇻🇳phucland79 – Bất động sản Khánh Hoà.
☎️Viber/Zalo: 0989351879
#phucland79 #datnendienkhanh #datnennhatrang #batdongsan #datthocu #datnenvendo #nhatrang #khanhhoa #luatdatdai #dautudatnen #hudbuilding #hudnhatrang #dautubatdongsan #dulichnhatrang #dienkhanh #datnenkhanhhoa #anbinhtan #nhatrang #bietthu #khudothi #chungcuhud #canhohud #kđthaquang #vcnphuochai #vcnnhatrang #ct2vcn #muongthanhvientrieu #phuoclonga #nhapho #chothuenhanguyencan